John Patrick Cunningham / Architect

Work             Process             About             Press              Contact

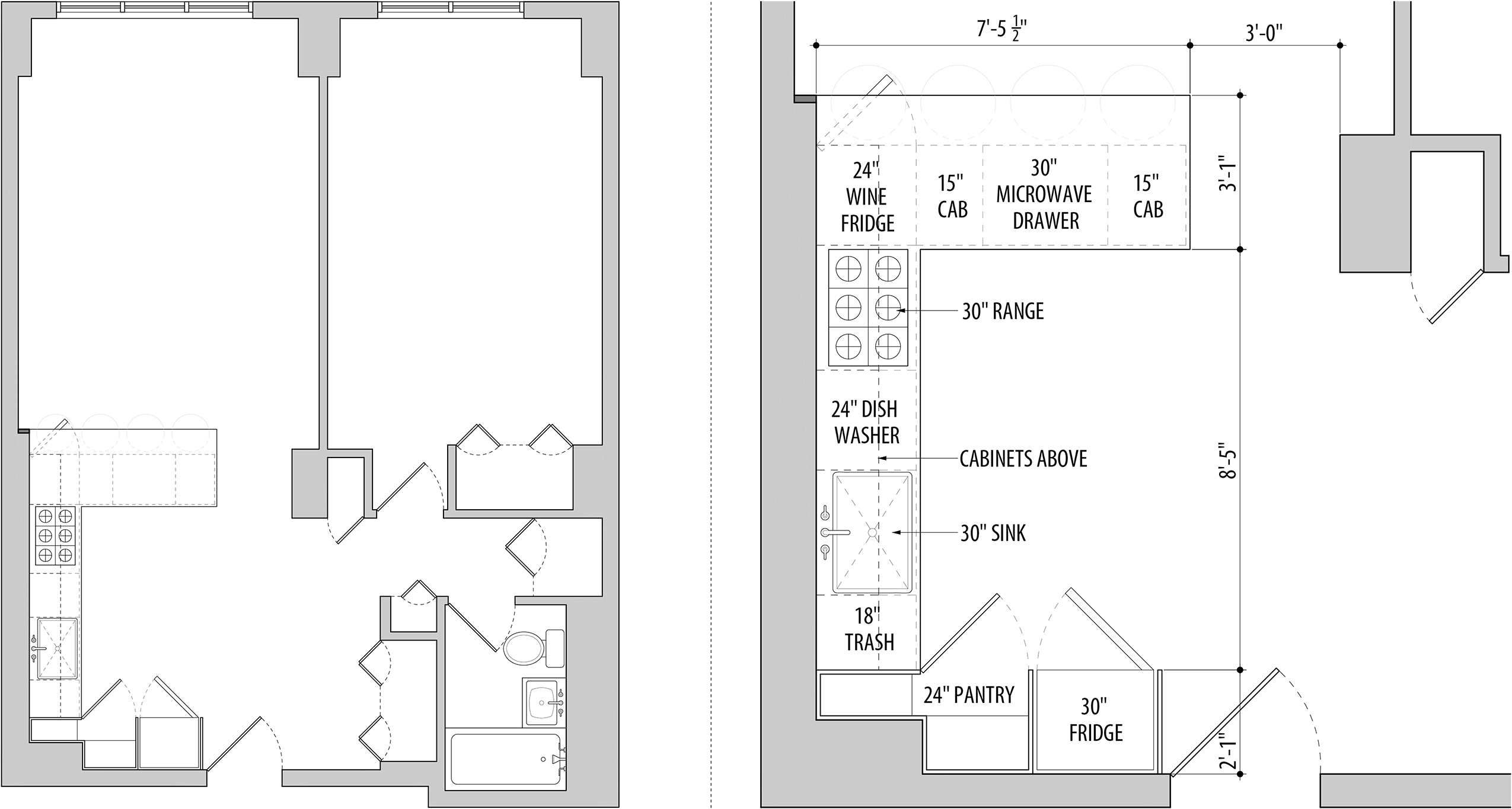
Yorkville Co-Op


Renovation, Not Realized
New York, New York, 2021




(Kitchen)

A simple kitchen renovation for a couple purchasing their first home.



(Kitchen)



(Plan)



(Original Plan)