John Patrick Cunningham / Architect

Work             Process             About             Press              Contact

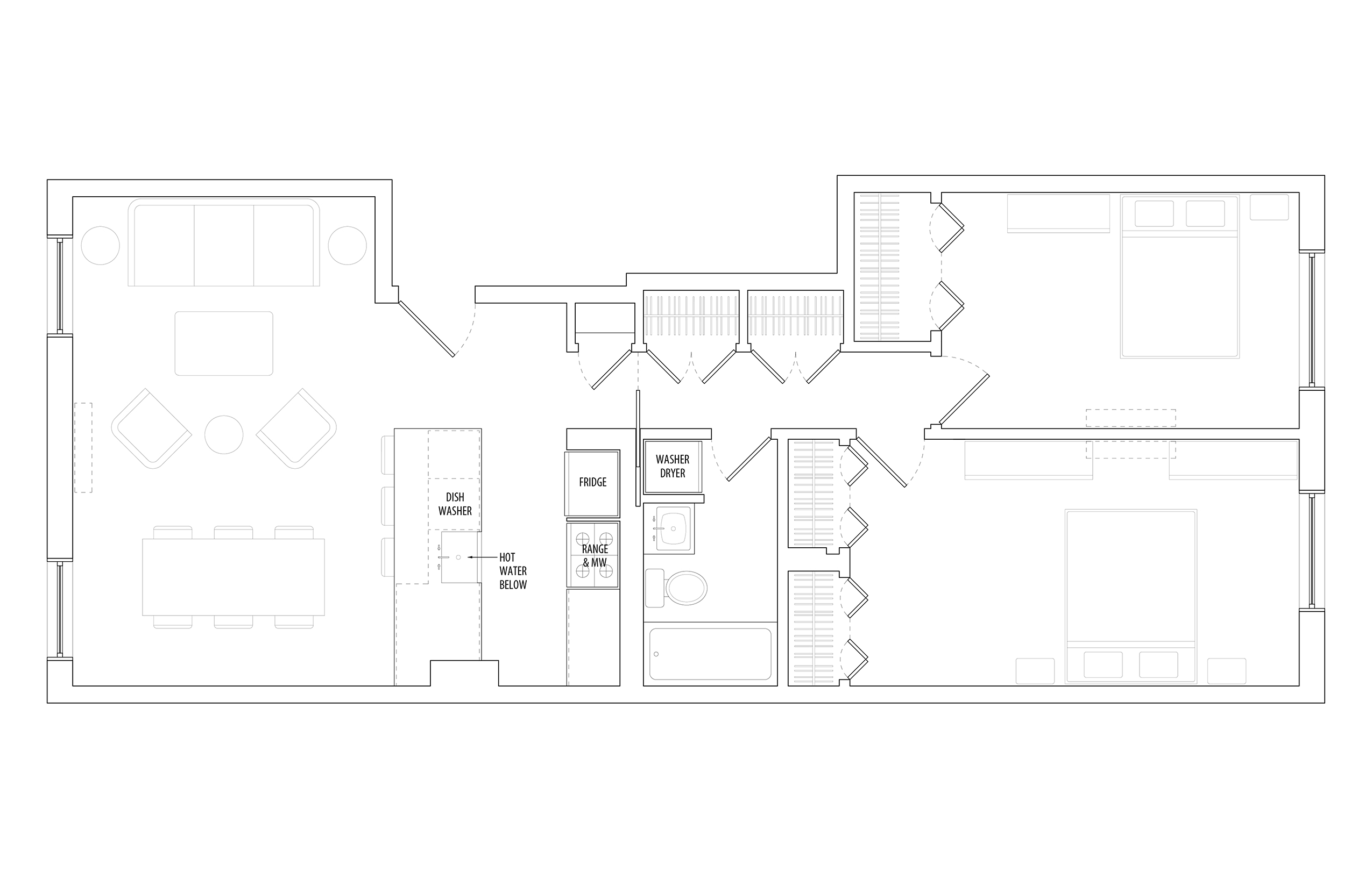
West Village Co-Op


Renovation, Under Construction  
Manhattan, New York, 2019



(Kitchen)



(Isometric)



(Living Room)



(Bath)



(Plan)

(Original Plan)